Thanks for joining our newsletter.

LENDER OWNED AUCTION: May 10, 2018 Student Housing Dormitory Ullin, IL

Details

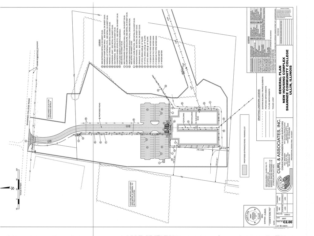
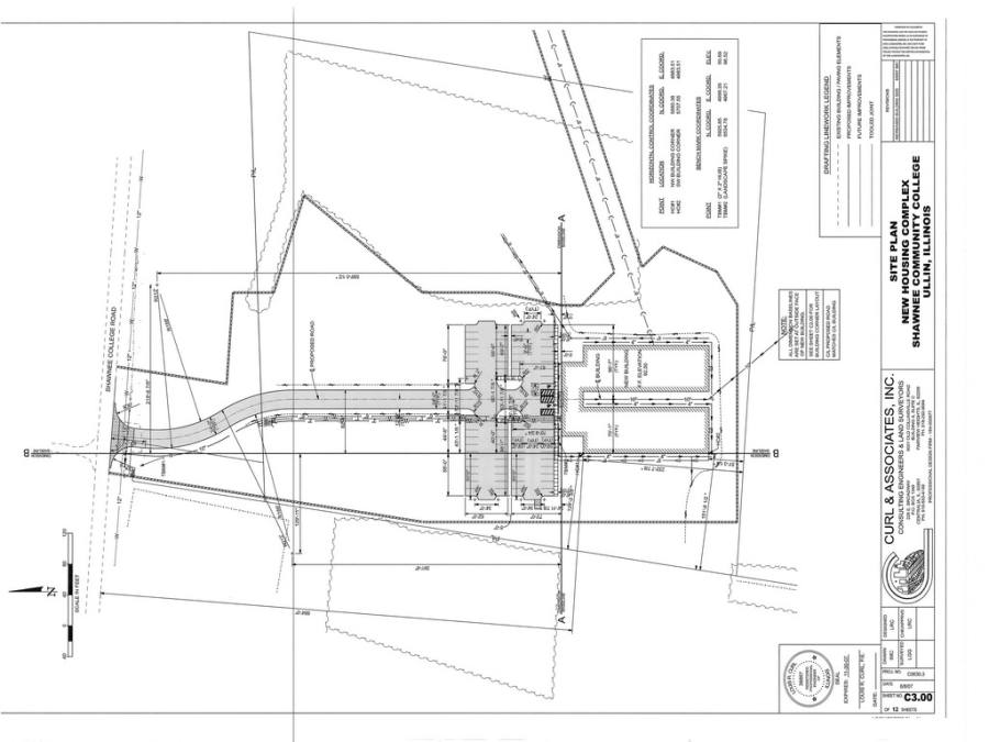
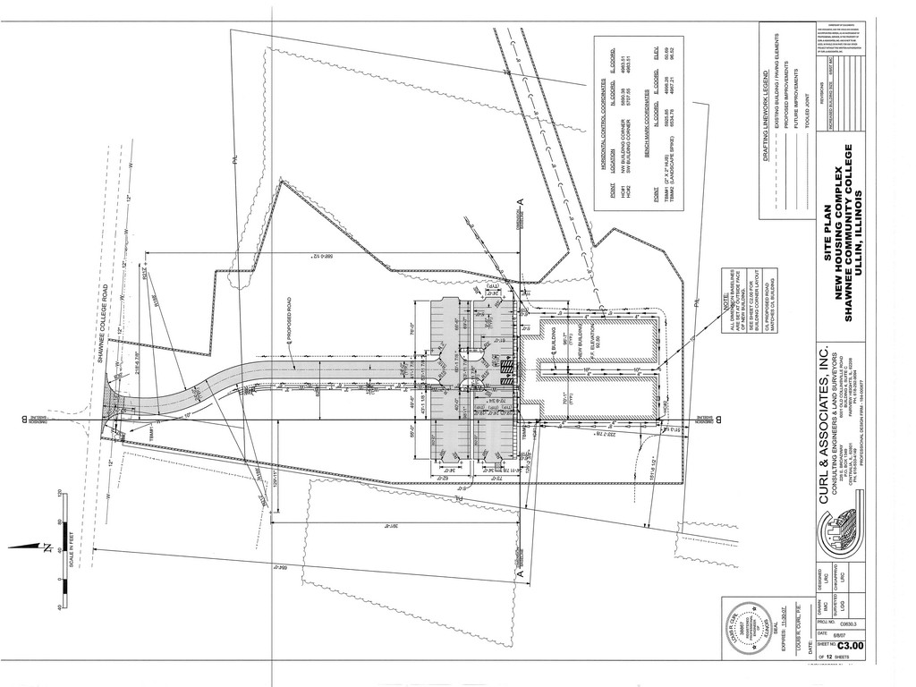
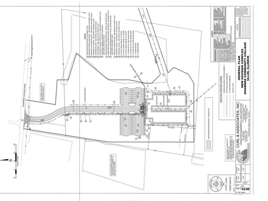
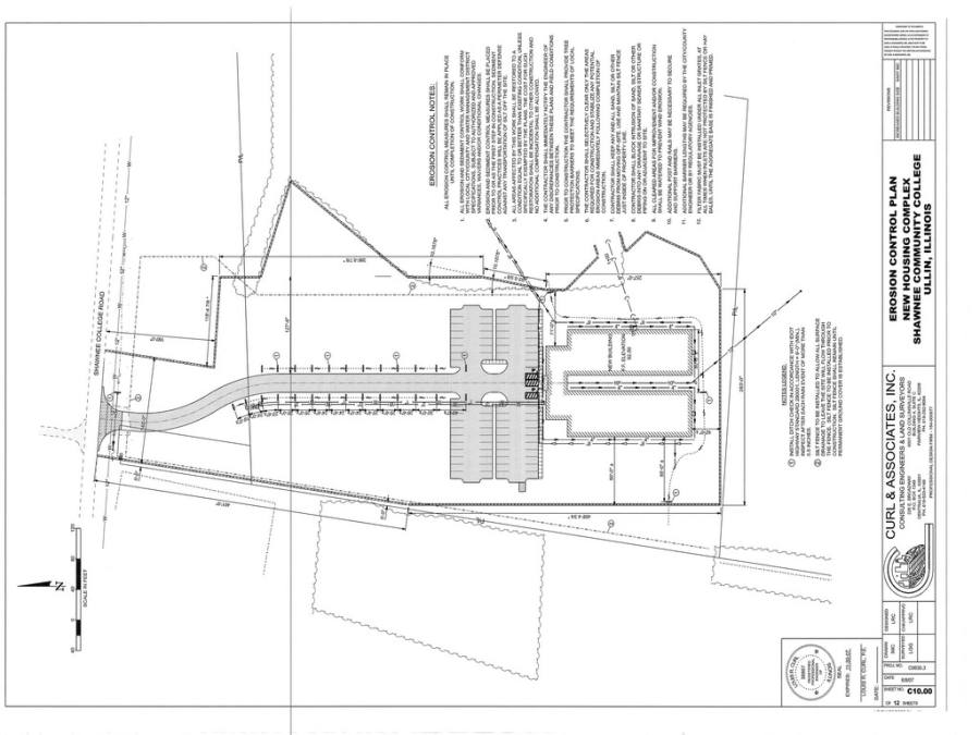
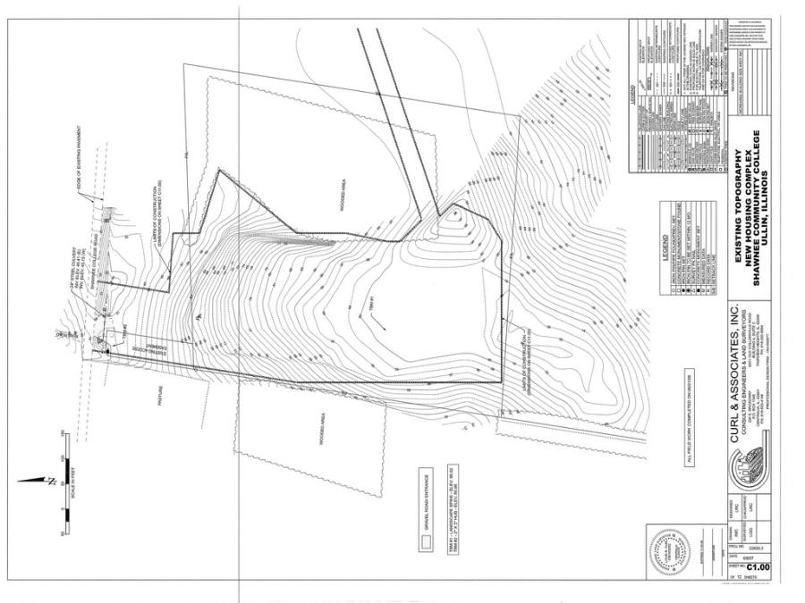
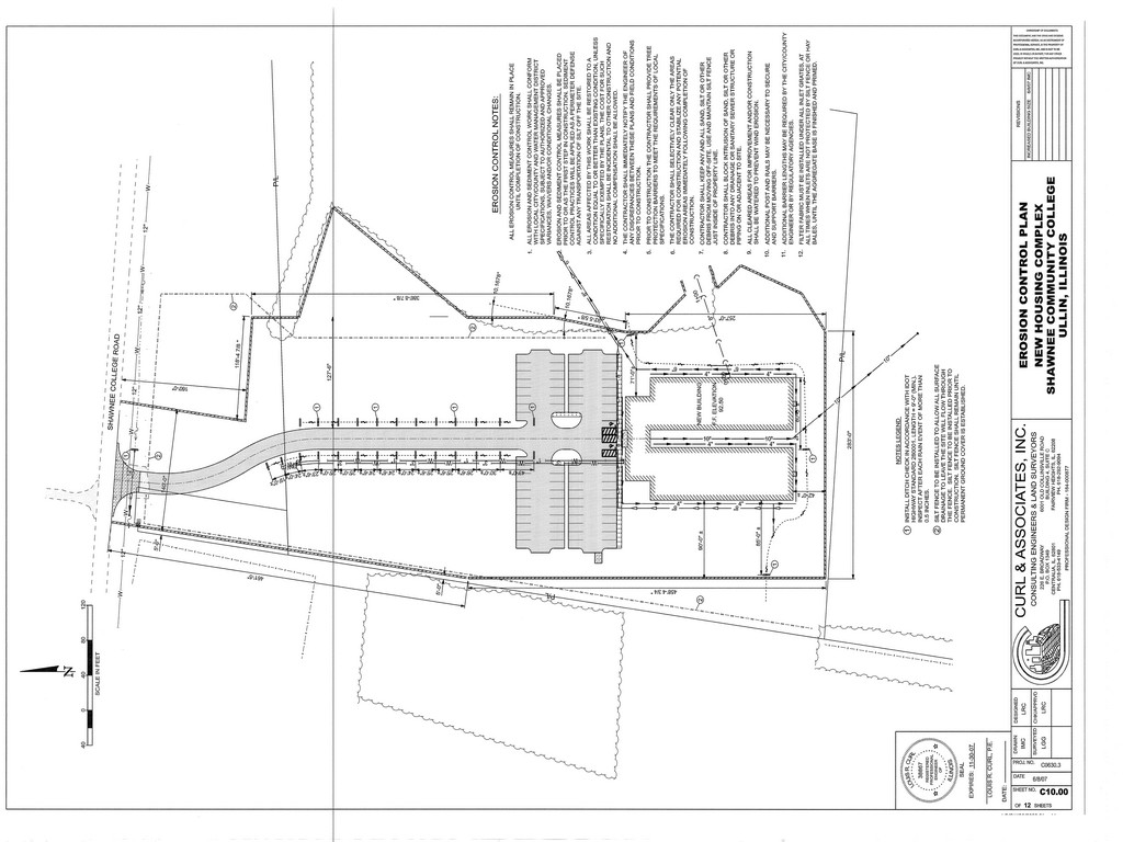
8954 Shawnee College Rd 
Ullin, IL 62992

Inspections

Monday, April 16: 9 am to 3 pm 
Wednesday, May 9: 9 am to 3 pm 
Thursday, May 10: 8 am to 10 am 
Other times by appointment.

Bid Deadline

Thursday, May 10 10:00 am

Share


Location

Details

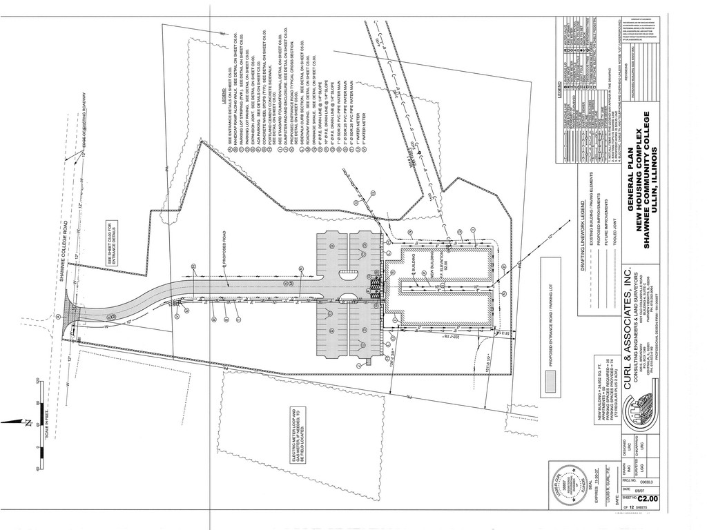
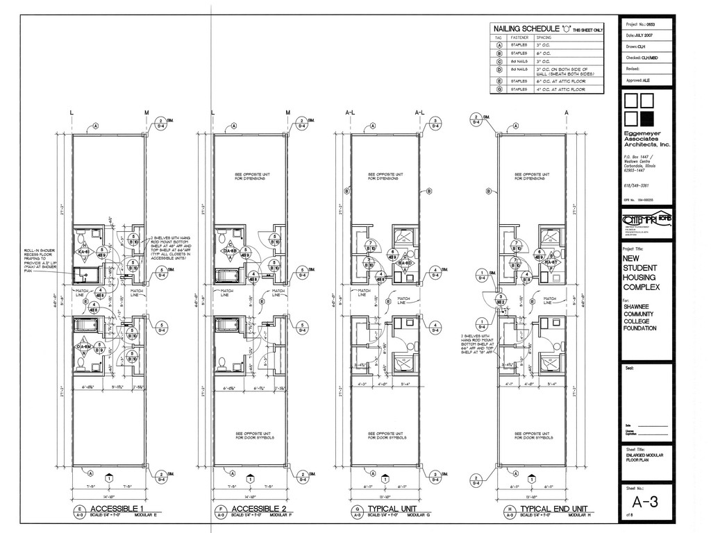
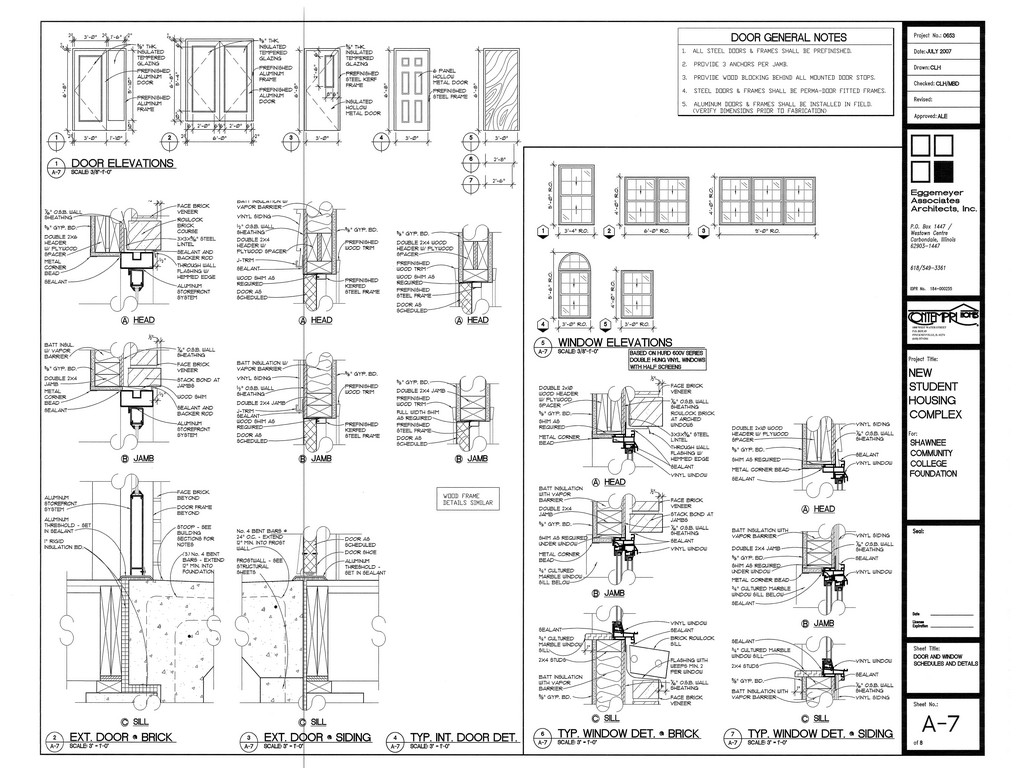
28,456 sq. ft. Former ''Saint Place'' Student Housing Dormitory on 10.3 Acres

Adjacent to Shawnee Community College



Property Selling As a Turn Key Package with All Bedroom/Office Furniture



Built in 2008 at a Cost of $2.8 Million for the Shawnee Community College Foundation

Adjacent to Shawnee Community College and Cypress Creek National Wildlife Refuge

Only Occupied Two Semesters



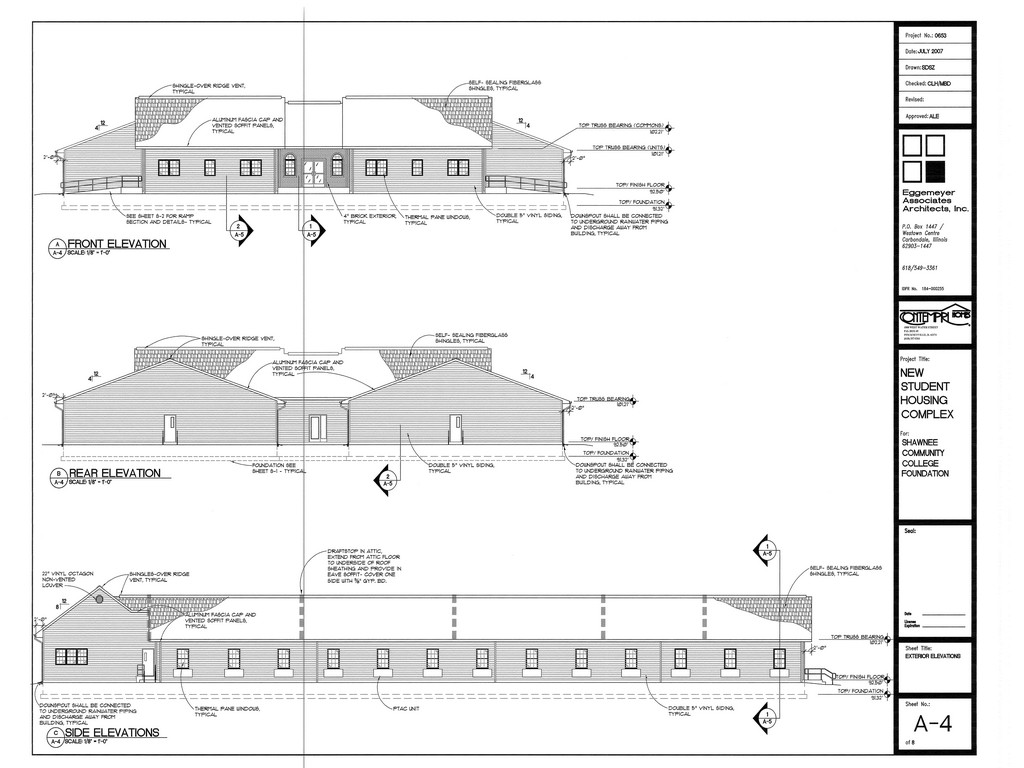
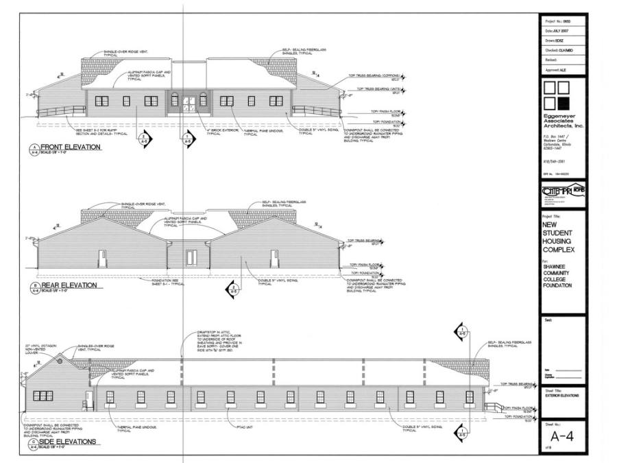
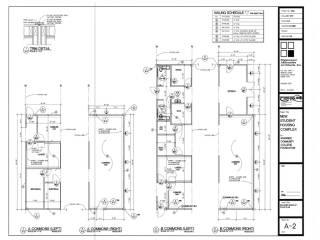
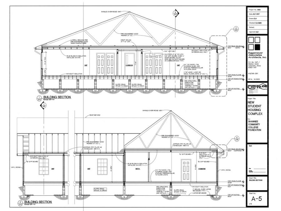
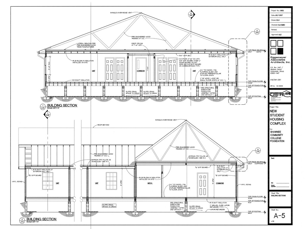
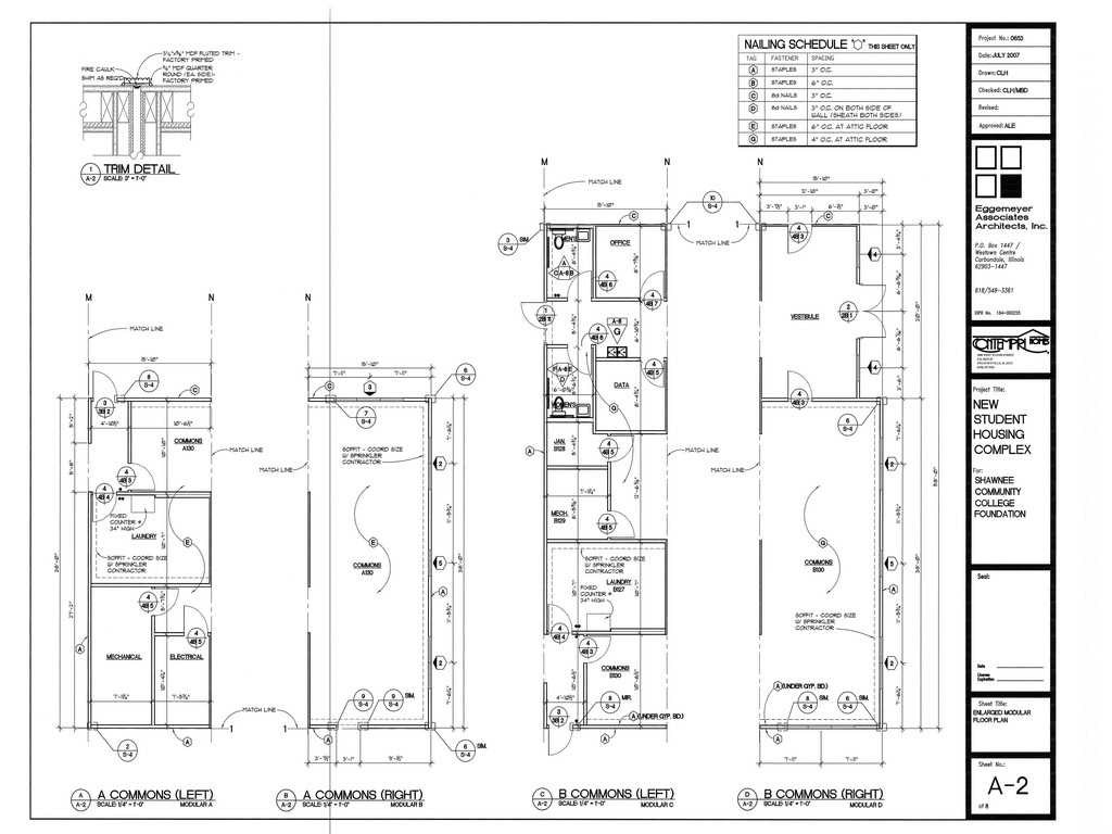
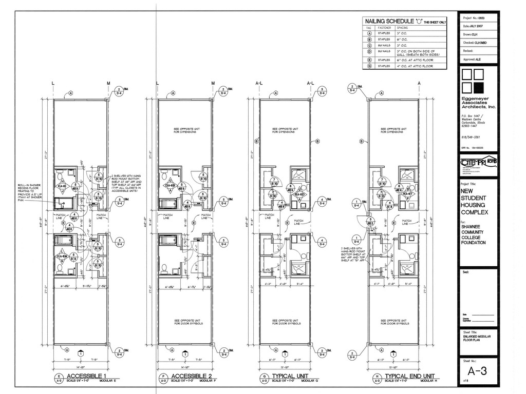
Custom Factory Built Modular One-Story Building

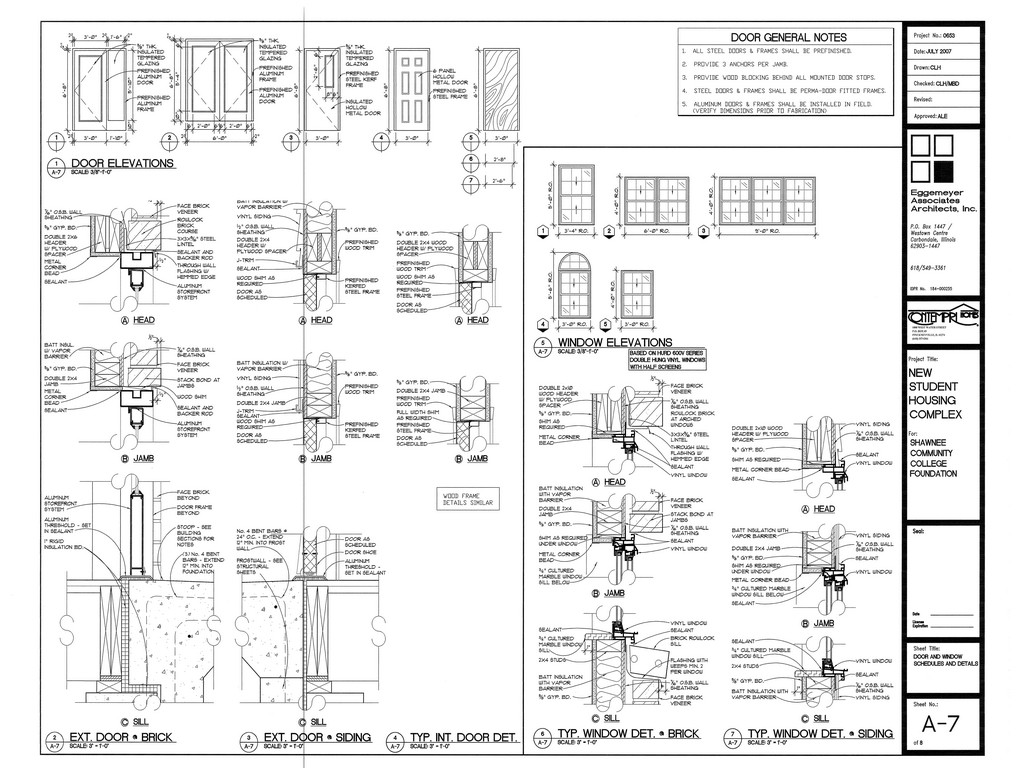
Full Concrete Footing/Foundation Walls with Crawlspace

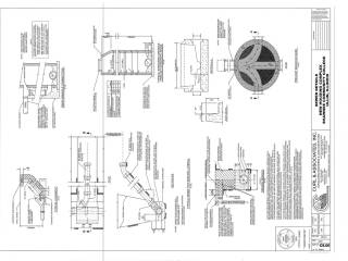
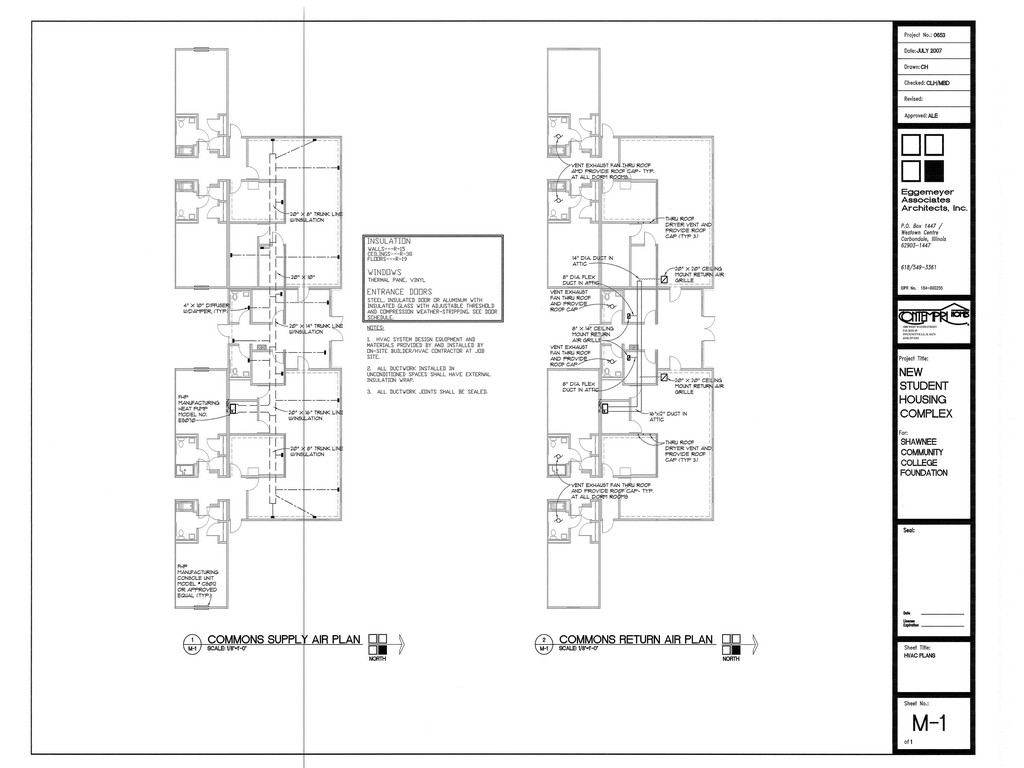
Asphalt Shingles, Vinyl Siding, Thermal Pane Double-Hung Windows

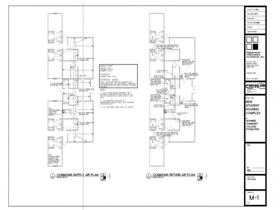
Insulation-R-38 Ceilings, R-15 Walls, R-19 Floor



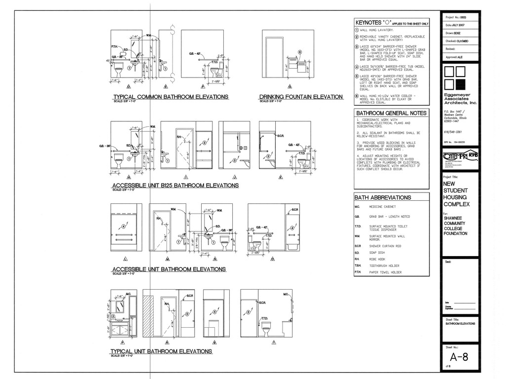
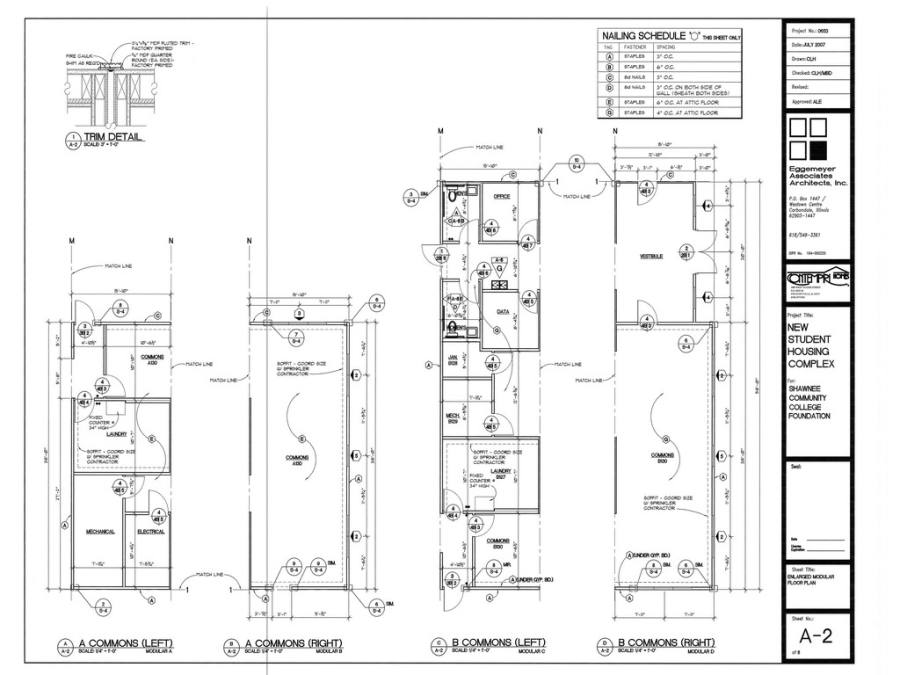
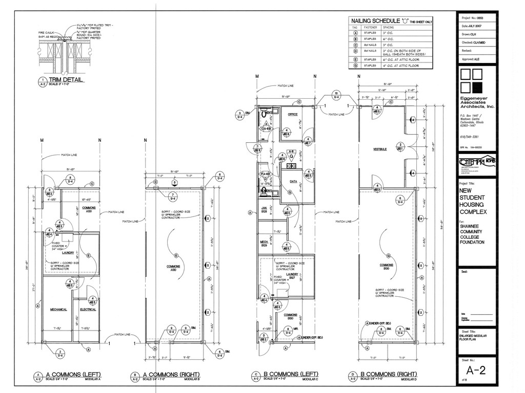
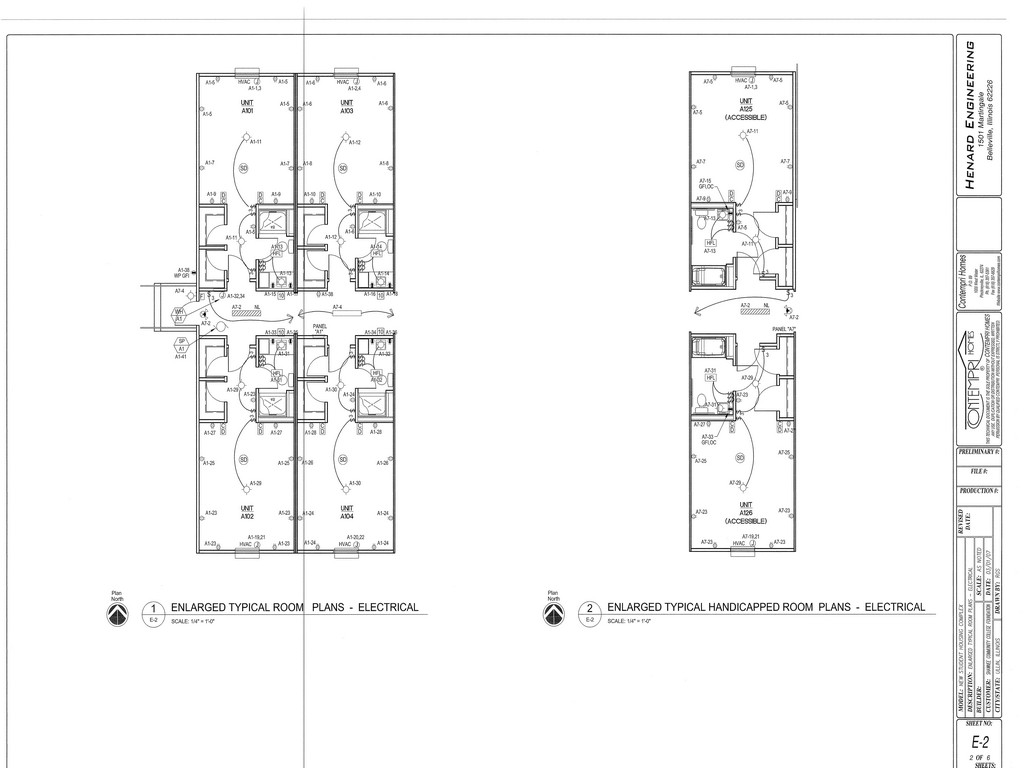
Central Common Area with Tile Floor, Office, Networking Room and 2-ADA Compliant Restrooms

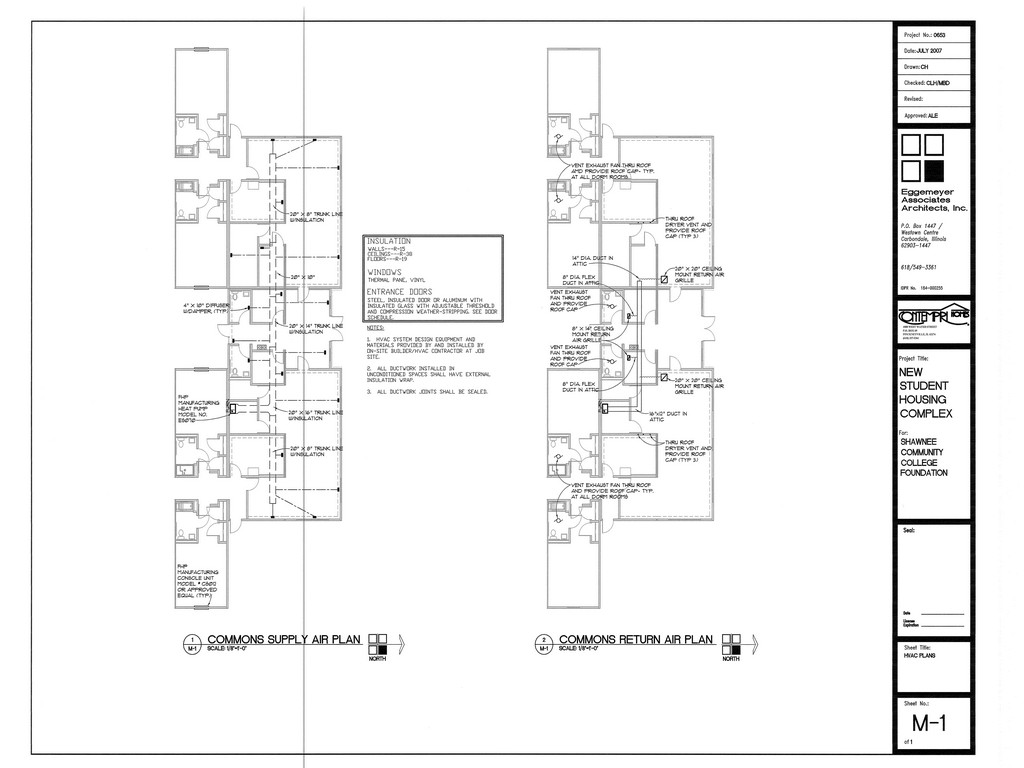
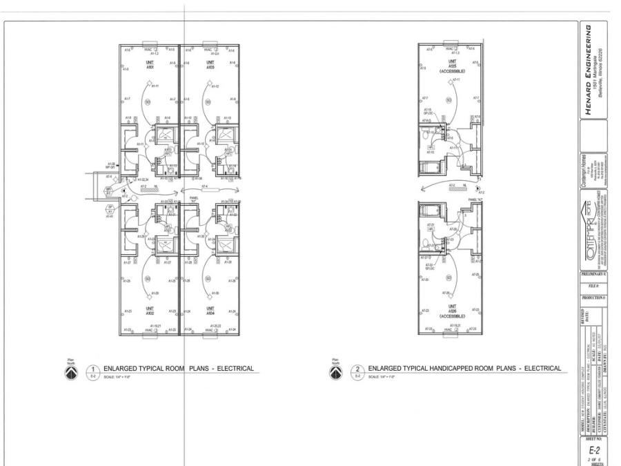
Each Identical Wing Has:

Laundry, Mechanical/Electrical, Common Areas,

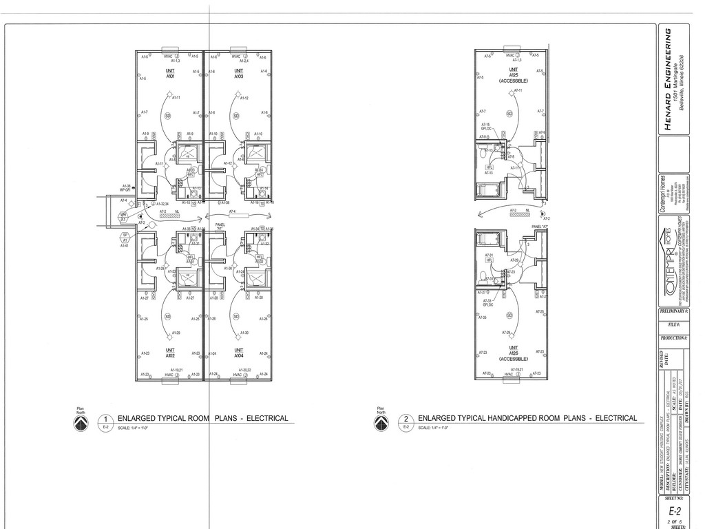
26 Double Bedrooms (for a Total of 52 Double Occupancy Bedrooms)



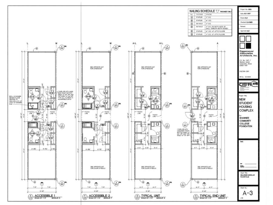
Each Bedroom:

400 Sq. Ft. with Independent Geothermal Heat/AC Units

Private Bathroom with Walk-In Showers (Some ADA Compatible)

Double Closets

Cat5e Data/Phone

Most Have 2-Beds, Desks, Chairs



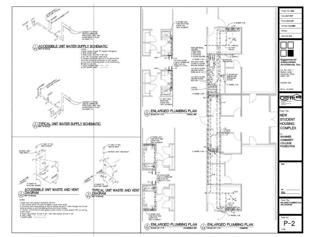
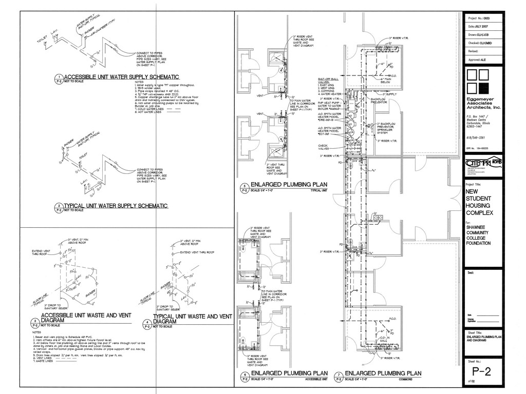
Building is Fully Sprinkled with Honeywell Fire-Lite/Gamewell/FCI 7100 Series Fire Alarm System



GEOTHERMAL- FHP Manufacturing (Bosch) Geothermal Heating/Cooling 6 Ton System- Consisting of: 1-Model ES070-1CFC Heat Pump, 1-WW072-1CSC Series Reverse Cycle Chiller, 52-CA Bedroom Console Units- Each Having Individual Heating/Cooling Control with 2-85' Vertical Closed Loop Wells

3-Rheem/Ruud ES85-18-G 85 Gallon Commercial Hot Water Heaters, 1-Rheem/Ruud ST80 80 Gallon Storage Tank



UTILITIES: Electric, Natural Gas, Shared Septic System with Shawnee Community College

ZONING - None

TAXES - Currently Tax Exempt



Ullin is located in the southeastern corner of Illinois near the Kentucky border. Nearby cities include: Anna, Illinois, 18 miles, Cape Girardeau, Missouri, 39 miles, Paducah, Kentucky, 61 miles, St. Louis, Missouri, 155 miles.



To view the appraisal and other documents related to this sale, please complete and return this

10% Buyers Premium. Persons must show $20,000 Certified Deposit at time of registration to obtain a bidding number. $20,000 Minimum Certified Deposit due on day of Sale, with a deposit equal to 20% due within 2 business days, and balance due at closing within 30 days. The Deposit money shall become Earnest Money and is non-refundable. Shawnee Title & Abstract is the escrow and closing agent. 
 

Auction with Reserve and Selling Subject to Owner Confirmation. Subject to Prior Sale. Selling AS-IS, WHERE IS WITH NO WARRANTIES OR GUARANTIES EXPRESSED OR IMPLIED. See Bidder Kit for complete terms. 

In all transactions, Auctioneer is acting as an Agent for the Seller. Buyers are urged to inspect items prior to purchase. Seller and Auctioneer are not responsible for items. All information received from reliable sources believed to be correct but not guaranteed by the Auction Company. Any announcement made at the auction takes precedence over any material published about this event. In the event of a dispute, Auctioneer has final decision. Valid Government Issued Photo ID required to obtain bidding number. 

Maas Companies Inc, #444.000289, in conjunction with Marcy Goldring-Edenburn, Goldring Edenburn Auctions, #440.000428.

Broker Participation is welcome but not required. A 2% commission will be paid to the licensed broker who, at the time of registration, registers the bidder who pays for and settles for the real estate. A broker buying on his/her behalf, or on behalf of any business entity in which he/she holds an interest, is not entitled to a commission.

Re: LENDER OWNED AUCTION: May 10, 2018 Student Housing Dormitory Ullin, IL

8954 Shawnee College Rd 
Ullin, IL 62992

Thursday, May 10 10:00 am
To Whom It May Concern: Pursuant to your request, please sign and date this release to receive documents relating to the above noted property. The Seller did not prepare these documents and has no knowledge of their accuracy or completeness. None of the documents shall constitute a representation or warranty of any kind by Seller as to the accuracy or completeness of any information delivered. Accordingly, Seller expressly disclaims any responsibility therefor, including any consequences of any reliance by anyone on them. Please note that the documents and the information contained therein are confidential, and by acknowledging receipt, you agree to keep such information confidential and that you shall not, without the prior written consent of Seller, share any of the documents with anyone other than Potential Buyer and representatives of Potential Buyer who need such information for the purpose of evaluating the premises and who are informed of the confidential nature of the information and also agree to be bound by the terms of this confidentiality provision. By this acknowledgement, you further agree that you will return to me the originals and any copies of the materials forthwith upon demand if the contemplated transaction is not consummated. Please do not hesitate to contact our office with any questions you may have.