Thanks for joining our newsletter.

ORDERLY NEGOTIATED SALE Paddle Mixers

Details

Inspections

Share



Details

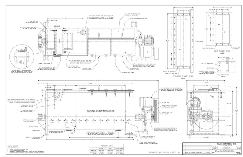
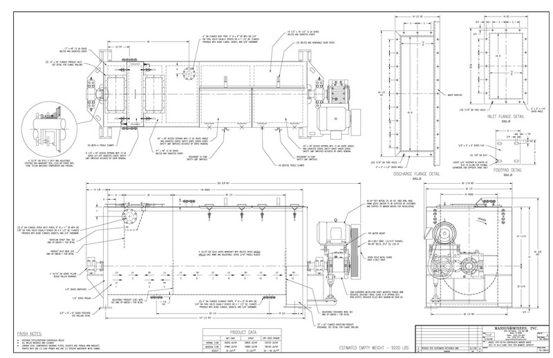
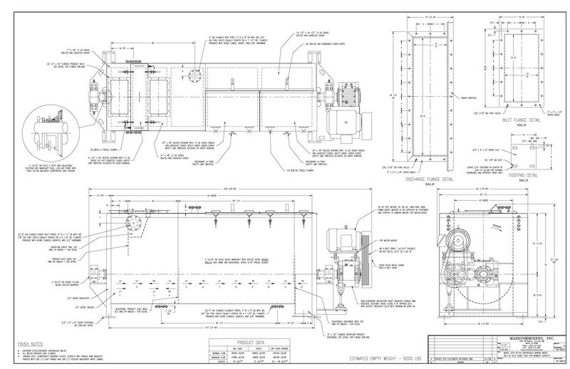
Two Marion Continuous Paddle Mixers – Model CPS-4214

Built in 2008.
Maximum load level: 94.5 cubic feet.

Constructed of 304 stainless steel with a non-jacketed trough that is 42" wide by 144" long and approximately 54" deep. It has a 4-15/16" diameter shaft with bolt on adjustable paddles. Top cover has two 24" x 36" access doors. It has two 4" bottom outlets. The mixer is driven by a 40 hp, 3/60/460 volt, 1,800 RPM TEFC motor through a SEW-Eurodrive (MC3PLHT06) shaft mounted torque arm reducer, ratio 29.61 to 1. The outboard roller bearings and style E split and adjustable stuffing box main shaft seals are included.

Product data (Normal Flow, Maximum Flow, Density):
Wet Cake – 29,205 LB/HR; 37,965 LB/HR; 35 LB/FT3
Syrup – 26,835 LB/HR; 34,890 LB/HR; 72 LB/FT3
Distiller’s dried grains with solubles – 105,725 LB/HR; 169,160 LB/HR; 35-48 LB/FT3

Contact Maas Companies to Make an Offer!

10% buyer premium will be added to the price. Sales tax may apply. No equipment can be removed from the site without full payment. Removal, packaging and transportation costs are the responsibility of the buyer.
 

Buyers have 30 days to make removal arrangements; items left longer than 30 days are subject to forfeiture. Equipment is selling AS-IS WHERE IS WITH NO WARRANTIES OR GUARANTEES EXPRESSED OR IMPLIED. Buyers are urged to inspect equipment prior to purchase.

In all transactions, Maas Companies is acting as an Agent for the Seller. All Information received from reliable sources believed to be correct but not guaranteed by auction company. Equipment selling subject to owner confirmation.

Re: ORDERLY NEGOTIATED SALE Paddle Mixers
To Whom It May Concern: Pursuant to your request, please sign and date this release to receive documents relating to the above noted property. The Seller did not prepare these documents and has no knowledge of their accuracy or completeness. None of the documents shall constitute a representation or warranty of any kind by Seller as to the accuracy or completeness of any information delivered. Accordingly, Seller expressly disclaims any responsibility therefor, including any consequences of any reliance by anyone on them. Please note that the documents and the information contained therein are confidential, and by acknowledging receipt, you agree to keep such information confidential and that you shall not, without the prior written consent of Seller, share any of the documents with anyone other than Potential Buyer and representatives of Potential Buyer who need such information for the purpose of evaluating the premises and who are informed of the confidential nature of the information and also agree to be bound by the terms of this confidentiality provision. By this acknowledgement, you further agree that you will return to me the originals and any copies of the materials forthwith upon demand if the contemplated transaction is not consummated. Please do not hesitate to contact our office with any questions you may have.